Lead Emails Phone: Email: [email protected]

For questions about municipal activities such as zoning, land-use, permits, incentives
Reade Beaudoin, Senior Economic Development Officer, Strathcona County 780-464-8095 | [email protected] https://www.selectstrathcona.com

For questions about government programs and investing in Alberta Email: [email protected]

Former event hosting space.

Details
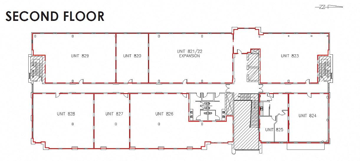
Available Space: 2037ft²
Price: Contact
Location Street Address: 8005 Emerald Drive
Lease Type: direct
Lot Size Units: SF
Space Types: Other
Suite Number: 823
Building Size Sf: 90057
Building Name: Emerald Hills Urban Village
Property Types: Other

Infrastructure Details
Note: distances are in straight line, rather than driving distances
Nearest highways:
  • Highway 16 - Less than 1 km (High Load Corridor)
  • Highway 21 - 1.69 km (High Load Corridor)
  • Highway 630 - 5.88 km
  • Highway 216 - 4.76 km (High Load Corridor)
  • Highway 628 - 9.11 km (High Load Corridor)
Nearest hospital:
  • Strathcona Community Hospital - 0.47 km
Nearest airports:
  • International: Edmonton International Airport - 35km
Nearest powerlines:
  • AltaLink - 700L 138kv - 0.12 km
Nearest substations:
  • SHERWOOD PARK - 746S , AltaLink - 2.16 km
Nearest railways:
  • Canadian National, Class : Main - 1.12 km
Nearest gas franchise area:
  • ATCO Gas - Sherwood Park
Nearest Power Plant:
  • Cloverbar #1 (ENC1), Capital Power (CBEC) L.P. - 6.53 km
    Simple Cycle, 48 MW
Fibre Internet Availability:
  • Ready/Available
  • Availability is estimated. Contact an internet service provider for more information.
Nearest Rail Terminals
Type Name Operated By Types of Products Shipped Distance
Transload CP Sherwood Park Arrow Reload Systems
  • Steel
  • forest products
  • lumber
  • bulk
  • machinery
2.65 KM
Transload CP Edmonton Trendwood Limited
  • Forest products
2.61 KM
Transload CP Sherwood Park Akenside TFR
  • Plastics
4.29 KM
Autoport CN Autoport Edmonton Canadian National
3.76 KM
Yard CN Rail Cloverbar Yard Canadian National
3.84 KM
Highways
Airports
International
Regional
Local
Railways
Rail Stations
Powerlines
Substations
Irrigation

Community Economic Highlights: Strathcona County, AB
...
Strathcona County is home to Alberta's Industrial Heartland, Canada's largest hydrocarbon processing region.
...
Six rail terminals and seven high load corridors are located within Strathcona County.
...
Median family income stands at $144,000 in Strathcona County, significantly above Alberta's median of $115,000.

Community Economic Details: Strathcona County, AB
Click on a tile to open the indicator page and view more details.

Site Data Provided by:
The information provided on property listing pages is sourced from third-party data providers. While we make every effort to ensure the accuracy of the information presented, we cannot guarantee its completeness or correctness. Users are advised to conduct their own due diligence and verify all details independently. The Government of Alberta, its agencies, and affiliates shall not be held liable for any inaccuracies or omissions in the property listings or for any actions taken in reliance on the information provided herein. Use of the information provided on property listing pages is at all times subject to the terms of the Disclaimer and Terms of Use.